Talu Textile办公大楼空间设计:办公家具、展示柜与定制家具的创新整合

Talu Textile办公大楼空间设计:办公家具、展示柜与定制家具的创新整合


Talu Textile办公大楼空间设计:办公家具、展示柜与定制家具的创新整合


地址:土耳其 伊斯坦布尔
面积:13,000 平方米
关键词:办公家具,服饰展示柜,定制家具、新生代工作空间,开放协作多元,产品展示设计,环境设计元素


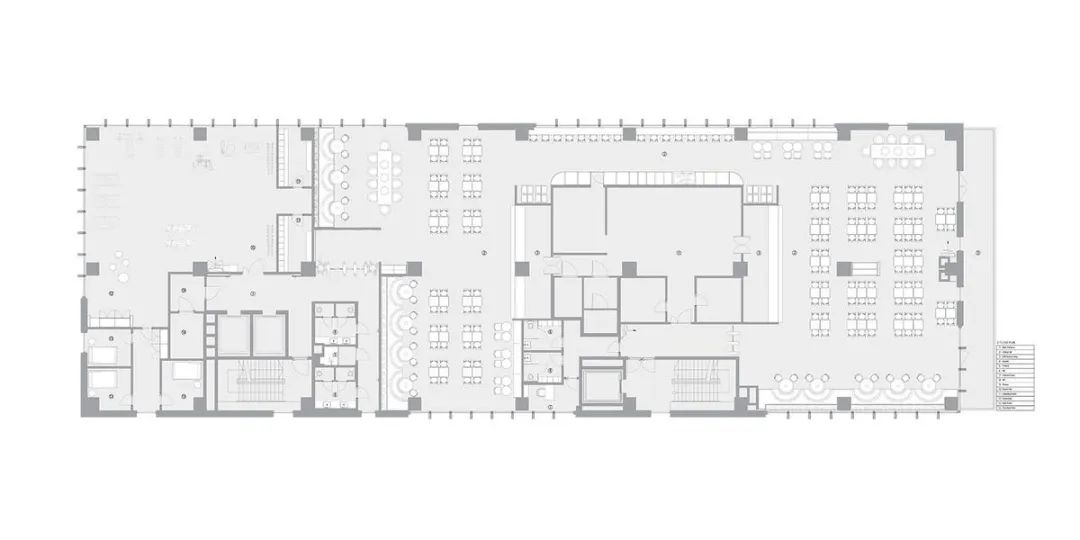
XYZ Design设计团队为土耳其伊斯坦布尔的Talu Textile打造了一座13,000平方米的现代化办公空间,通过办公家具模块化设计定制服饰展示柜功能型定制家具的深度整合,通过家具与空间的协同设计实现功能与美学统一。这座跨越八层的办公大楼满足了运动衫制造企业的生产与管理需求。

办公家具:灵活布局驱动高效协作

在四层和五层的核心办公区,XYZ Design采用动态无阶层办公家具系统,打破传统格子间束缚。开放式办公区以线性布局为基础,配置可升降办公桌与人体工学椅,满足员工站立办公、团队讨论等多元需求。周边协作区配备模块化组合沙发与移动白板,配合玻璃隔墙会议室,既保障会议隐私,又通过透明材质维持空间通透感。行政楼层定制实木办公桌搭配真皮座椅,集成无线充电与线缆管理系统。

展示柜设计:产品与空间的叙事融合

作为运动衫制造商,Talu Textile将产品展示设计融入办公空间基因。一楼接待大厅设置弧形亚克力展示柜,内置动态灯光系统,循环展示当季新品与品牌历史藏品。展示柜底部采用悬浮式设计,访客可直观了解产品面料成分与生产工艺。
在三层员工餐厅周边,XYZ Design巧妙设置开放式服饰展示架,与用餐区的活力色调相呼应。这些展示架兼具产品陈列与临时储物功能,员工可在此交流设计灵感。

定制家具:功能导向的空间解决方案

针对不同楼层的特异性需求,定制家具成为空间优化的关键。二楼制造区配备高密度智能存储柜,采用分层抽屉设计,使面料与半成品存取更为高效。裁剪区的定制工作台集成缝纫机电源接口与废料收集槽,台面采用抗污防火材料。
人力资源部(一楼)的定制家具则聚焦人性化体验。面试间配备可旋转隔断柜,既作为空间分隔,又能展示员工荣誉与企业活动照片。储物柜设计为模块化立方体,员工可根据物品尺寸自由组合单元,内部暗藏充电接口与除湿系统。

办公家具、展示柜与定制家具的设计始终与开放协作多元的空间理念相辅相成。四层游戏墙区域的定制波浪形座椅与墙面互动投影系统联动;五楼设置的绿植墙搭配悬挂式花盆架,将自然元素引入办公环境,而花盆架本身兼具文件收纳功能,实现生态与实用的统一。

XYZ Design通过对办公家具、展示柜与定制家具的系统性设计,使13,000平方米的办公空间成为品牌实力的立体呈现,为制造业企业办公空间设计树立新标杆。


在线客服
电话联系
13809618579微信同号