
360平方米如何容纳95人办公
2025年,珠海CBD高层,一家旅行社的总部办公室引发设计圈关注。活力旅行社新总部仅360平方米,却要承载95人办公,还要满足接待、会议、展示等复合需求。c.dd有限無界设计团队用"房子里的房子"理念,将办公环境、办公家具与科技简约风格深度融合,交出了一份令人惊叹的答卷。

空间重构:用内建筑手法突破物理限制
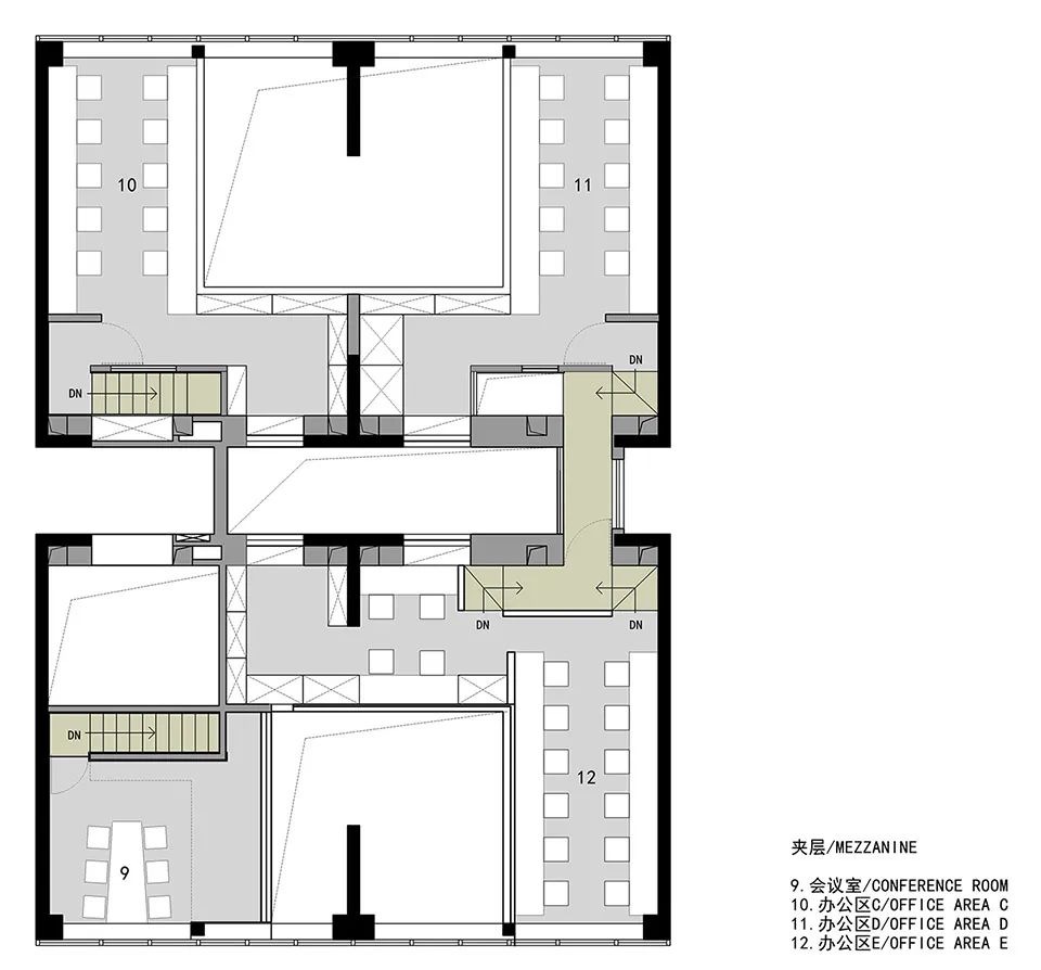
面对原建筑屋梁低、柱体多的局限,设计团队反其道而行。他们利用4.28米层高优势,嵌套夹层并设置三座楼梯连接四间功能房,通过"内建筑"手法实现空间增容。这种重构不仅解决了拥挤问题,更创造出独立又开放的办公环境。
核心在于将大空间划分成小尺度功能体块。每个体块配备定制家具,既保持科技简约的统一风格,又满足不同场景需求。开放式办公区采用轻量化办公桌,会议区配置模块化会议桌,VIP室则选用温润木质家具,形成层次分明的空间语言。
体验升级:光感与艺术塑造活力场域
入口处,简洁方正的前台体块搭配线性灯带,奠定科技简约基调。定制画作《铁人28号·澳门》与装置《大和号》成为视觉焦点,将企业精神与艺术美学巧妙结合。《大和号》装置的金属材质与办公家具的铝合金框架形成材质呼应,强化科技感。这些元素与现代办公家具碰撞,营造出轻松高效的办公氛围。
一层动线围绕中区形成洄游路径,两座可反复穿行的走廊增强了空间流动性。素净白墙与温润木材质感对比,配合精心设计的办公家具,让员工在开放与私密间自如切换。开放式办公区的模块化家具布局使团队协作效率提升30%,独立新风系统的加入,更确保了办公环境的舒适度与健康标准。








细节制胜:定制家具的科技简约表达
夹层设计是空间利用的点睛之笔。向外"开窗"的处理既解决了采光问题,又创造了上下层的视觉对话。这里的办公家具全部定制,从材质到尺寸都经过精心计算。采用铝合金框架搭配钢化玻璃桌面的定制办公桌,既符合科技简约风格,又满足承重需求。吸音板、矿棉板等声学材料的运用,有效避免了钢结构带来的噪音困扰。同时选用环保E0级板材和耐磨聚酯纤维面料,确保办公环境的健康与耐用。
楼梯设计暗藏巧思,九级台阶后接四级台阶的布局,既节省空间又形成有趣的节奏变化。连接夹层的廊道与《大和号》装置一同悬空,成为空间中最具活力的社交枢纽。这种流动感的创造,让360平方米的办公环境产生了远超实际面积的空间体验。



















有限空间无限可能
活力旅行社珠海总部的设计,展示了办公环境重构的无限可能。c.dd有限無界通过内建筑手法、定制家具与科技简约风格的结合,不仅解决了功能需求,更塑造出富有活力的精神领地。这个案例证明,优秀的办公空间设计能够激发团队创造力,成为企业发展的隐形动力。当办公家具不再只是用具,办公环境不再只是容器,空间便真正成为了抵达未来的起点。



