瑞典IT咨询Netlight慕尼黑办公:创新驱动灵活协作的工作方式

瑞典IT咨询Netlight慕尼黑办公:创新驱动灵活协作的工作方式
地址:德国 慕尼黑
面积:2,100 平方米
关键词:办公环境设计,办公家具搭配,IT咨询,德国,简约设计,开敞通透,协作交流,灵动多元,创意个性化,适应性
瑞典IT咨询公司Netlight于2024年初在德国慕尼黑市中心Pranner街设立新办公室,总面积约2,100平方米。该办公空间由Seel Bobsin Partner设计团队打造,旨在为公司打造一个促进聚集、优化会议与创意交流的专业环境,以更有力、更生动地呈现企业文化。
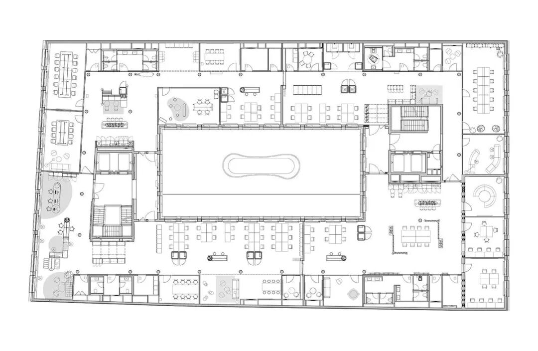
新办公室以简约设计为基础,注重开敞通透的空间结构,形成现代室内装修与原有建筑结构的积极共生。设计团队侧重营造情感化场景氛围,规划多个功能性特殊区域与高度灵活的交流区,支持协作交流与灵动多元的工作模式。
三层楼的空间规划重点布局协作区与互动交流区,以优化工作流程,促进与客户的直接创意对话,制定高效解决方案。一楼设有宽敞的互动活动区,配备舞台、露台与活动厨房,可用于举办各类活动,相邻还设有健身房、休闲区与祈祷室。二楼设专门客户接待区及图书区,既支持团队共创,也满足专注工作的需求。
各会议室均赋予不同的设计主题,通过现代色彩与高对比度的个性化元素,营造出与标准化办公室截然不同的愉悦氛围。定制化室内装饰与时尚色彩组合,呼应了创意个性化与适应性的设计理念。家具配置支持现代灵活的工作方式,能够适应企业快速发展与多样化的办公需求。
Netlight慕尼黑办公室通过创新驱动的空间设计,实现了功能、美学与文化的融合,不仅提升了团队协作效率,也增强了企业与客户之间的互动体验,体现出当代IT咨询企业注重灵活、开放与人文关怀的工作方式。
在线客服
电话联系
13809618579微信同号