杭州MAX科技园样板间:创新办公环境设计与定制家具的典范

杭州MAX科技园样板间:创新办公环境设计与定制家具的典范

杭州MAX科技园样板间:创新办公环境设计与定制家具的典范

在杭州这座电子商务之都,MAX科技园样板间以办公环境设计为核心,打造了一个面向未来的高科技办公空间。本项目由IFG伊波莱茨建筑设计团队操刀,面积达1,550平方米,于2024年完工。设计聚焦于办公家具的灵活性与人性化,通过酒店风与工业质感的结合,营造出鼓励协作与创新的工作环境。本文将带您深入探索这一空间如何以定制家具和智能布局满足电商时代的需求。

平衡的艺术:办公家具与环境的双重魅力

空间设计通过巧妙的对比营造动态氛围。模块化天花板体现秩序感,而下方的功能区错落有致,激发探索欲。酒店风格的办公家具和温馨装饰打破了传统办公的单调,兼具专业性与舒适感。材料选择保留天然纹理,色彩方案融合活力与沉稳,彰显出办公环境设计的双重属性——整洁而灵活,技术化却不失人性。


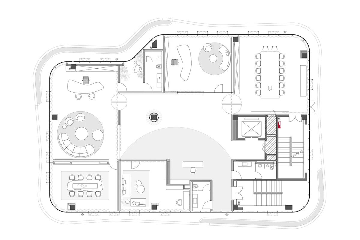
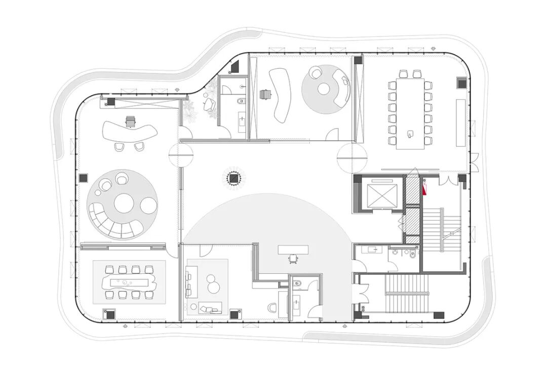
建筑宣言:大堂的办公环境设计亮点

一楼大堂高7.5米,是项目的“建筑宣言”。这里整合了前台、休息区、展区等多功能空间,以创新的办公环境设计展现行业前瞻性。设计语言强调视觉冲击力,为访客留下深刻第一印象,同时突出了定制家具在空间划分中的关键作用。


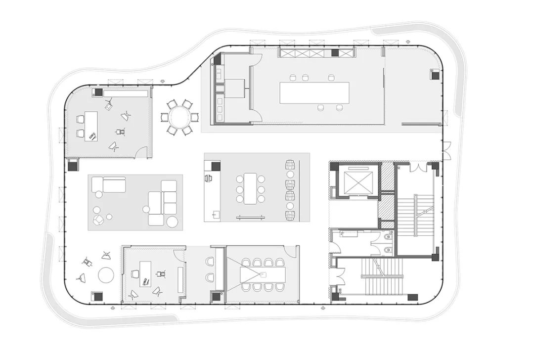
数字沟通专家:定制家具与科技融合

二楼专为高科技电商企业设计,将研发实验室与直播间无缝集成。先进的设备和透明布局使定制家具发挥最大效能,例如专业化直播间家具,为视频录制和直播提供理想背景。这一层体现了办公环境设计对质量与创新的追求。

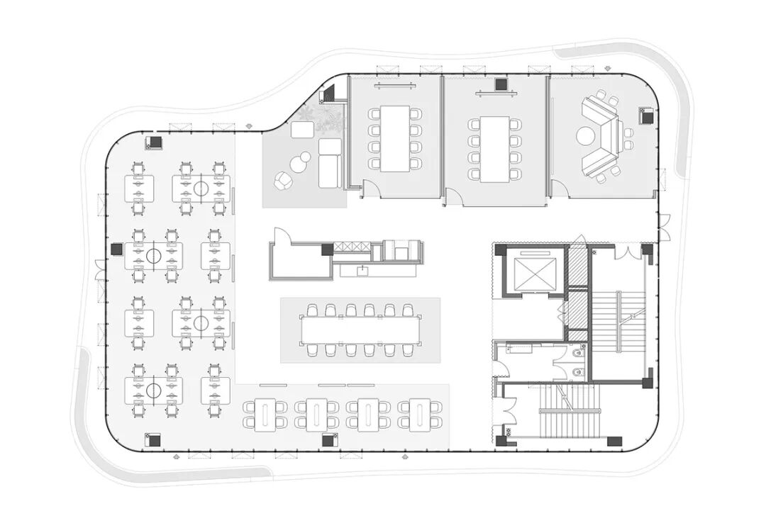
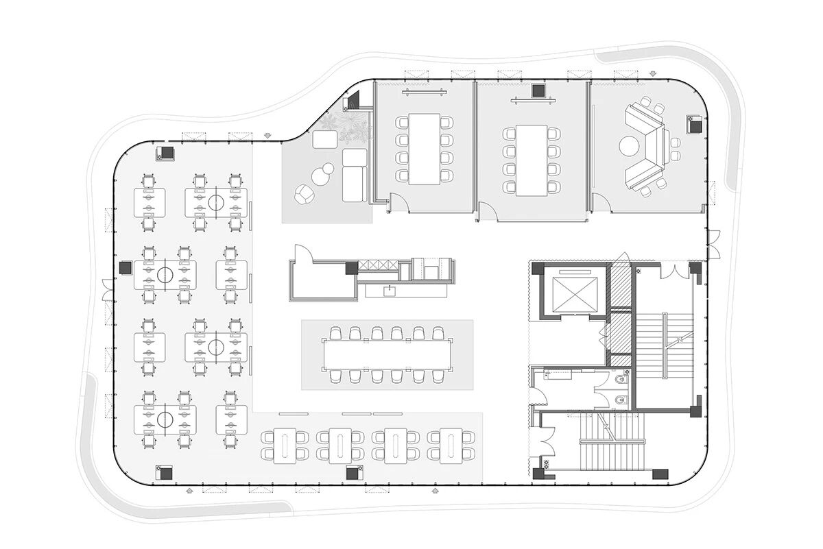
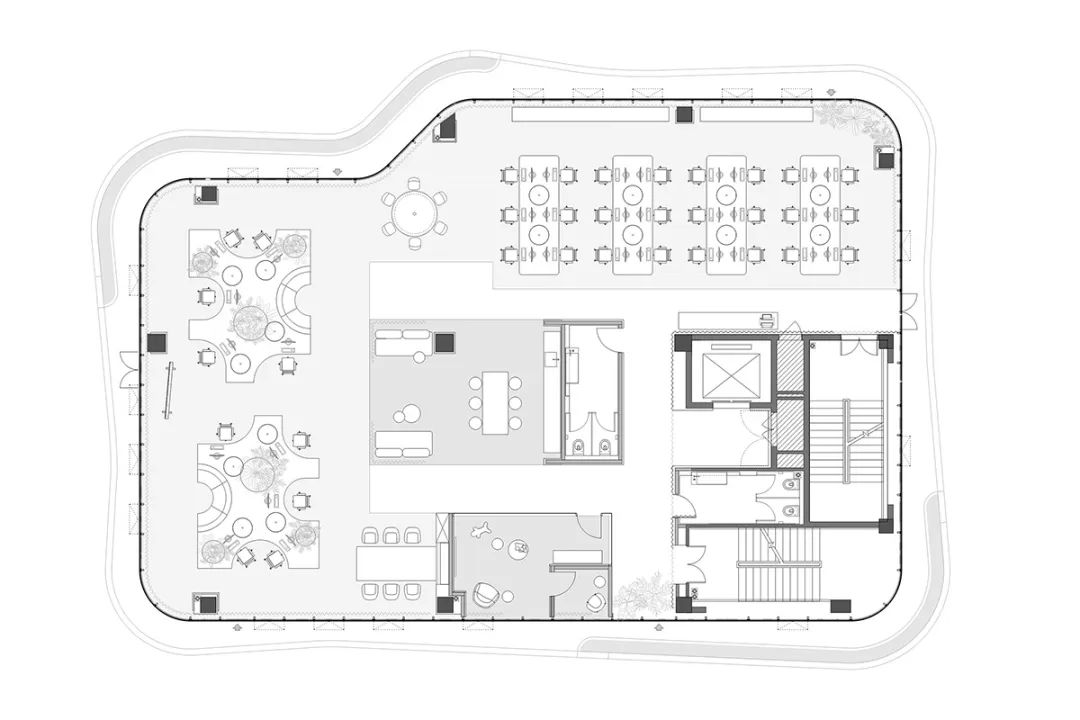
灵活空间选择:办公家具的多元应用

三楼和四楼提供多种办公配置,满足独自办公、会议和协作需求。灵活的布局和丰富多样的办公家具选择,如可调节桌椅和模块化隔断,拓展了传统办公理念。办公环境设计在这里注重自发交流,成为创意的孵化器。


人性关怀:管理层的设计隐喻

五楼以“树干”设计象征管理层对员工的关怀,定制家具如中央聚集区座椅,体现了人性化办公环境设计。这一空间强调社区感,使办公家具不仅功能实用,更传递企业价值观。

增长蓝图:未来办公的标杆

MAX科技园样板间以其强烈的视觉个性与灵活性,成为办公环境设计的新标杆。项目证明,优质的办公家具定制家具解决方案能有效提升工作效率与创新力,为行业未来发展提供蓝图。

通过强调办公家具办公环境设计定制家具,本空间不仅适应电商行业需求,更激发了工作方式的变革。欢迎探索更多细节,感受设计如何重塑未来办公!

在线客服
电话联系
13809618579微信同号