Ukraine HELLO SCHOOL: Unlocking Children's Creativity with Design
Address: Dnipro, Ukraine
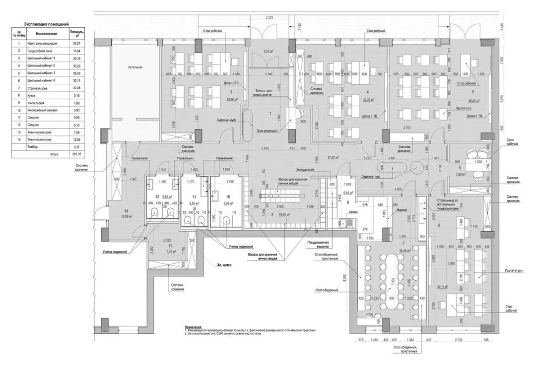
Area: 400 square meters
Keywords: furniture, student classroom, education/primary school, fashionable and simple, high-end and exquisite, pink color matching, environmental guidance system design, flexible and diverse, campus furniture
In Dnipro, Ukraine, a private elementary school called HELLO SCHOOL redefines the possibilities of modern educational architecture with a space of 400 square meters. As an extension of the Children's Home project, it continues the former's deep thinking on the growth environment, while injecting more mature design language, creating a learning environment that is both in line with children's psychology and has high-end texture.
The campus adopts a fashionable and simple design style, with pink color as the main tone, creating a soft and vibrant atmosphere. This color selection not only conforms to children's aesthetics, but also effectively alleviates learning pressure and stimulates imagination. Every space has been carefully planned, from the entrance area to the storage cabinet area, from the amusement corridor to four standard classrooms, reflecting flexible and diverse design concepts everywhere. Each classroom can accommodate 12 students and is equipped with modern campus furniture, supporting a progressive learning system that allows teaching activities to be flexibly adjusted according to different needs.































The cleverness of the spatial layout lies in its linkage with the family club. The shared corridor system for sports, music, and creative activities not only ensures the independence of the school, but also achieves efficient utilization of resources. The school has complete internal functions, including a dining room with a small kitchen, three bathrooms, a technical room, and a storage room, to meet the comprehensive needs of students during their school years. All engineering communication equipment is carefully configured to ensure that children learn and grow in a safe and comfortable environment.
It is worth mentioning that the entire campus environmental guidance system is designed by the well-known "&MO" studio, which uses clear visual guidance to help children quickly familiarize themselves with the campus environment and cultivate spatial cognitive abilities. The selection of decoration materials strictly follows high operating loads and environmental standards, providing a solid guarantee for the healthy growth of children.
The emergence of HELLO School is not only an innovative attempt in the field of educational architecture, but also a deep exploration of children's growth environment. It proves that excellent spatial design can become a part of education, inspiring children's creativity through the power of the environment and laying a solid foundation for their future development.